城东大厦1幢11层1101-1104室房屋7年租赁权

  • 起始价:
    1,556,699.45
    元/年
  • 开始时间:
    2025-12-25 09:00:00
报价:

起始价:1,556,699.45元/年

交易保证金:200,000.00

交易服务费: 详见交易公告

保留价: 无

自由报价周期: 360.0分钟

延时报价周期: 5.0分钟/轮

加价幅度: ¥2,000.00

优先权:否

联系咨询方式: 叶小姐、施先生  0571-85085594、0571-85085591

交易记录

报价号 价格
  • 标的介绍
  • 所在位置
  • 交易公告
  • 交易须知
  • 标的附件
  • 交易记录

 

标的名称

城东大厦1幢11层1101-1104室房屋7年租赁权

标的编号

HJS2025ZL2763

信息披露起始日期

2025-12-18

信息披露结束日期

2025-12-24

出租底价

1556699.45 元/年

房屋所在地区

浙江省,杭州市,上城区

标的是否存在抵押情况

权利人是否有意向行使优先承租权

不涉及

联系人

叶小姐、施先生

联系电话

0571-85085594、0571-85085591

联系地址

杭州市钱江新城香樟街2号泛海国际A座27楼

 

出租房屋基本情况

出租房屋基本情况

房屋名称

杭州市上城区环站东路799号(钱投城东大厦)1幢1101-1104室房屋

坐落位置

杭州市上城区环站东路799号(钱投城东大厦)1幢1101-1104室

不动产登记号/房产证号

/

房屋建筑面积(平方米)

/

房屋用途

/

不动产分类

其他用房

其它权力情况

使用现状

空置

是否存在优先承租权

不涉及

其他披露事项

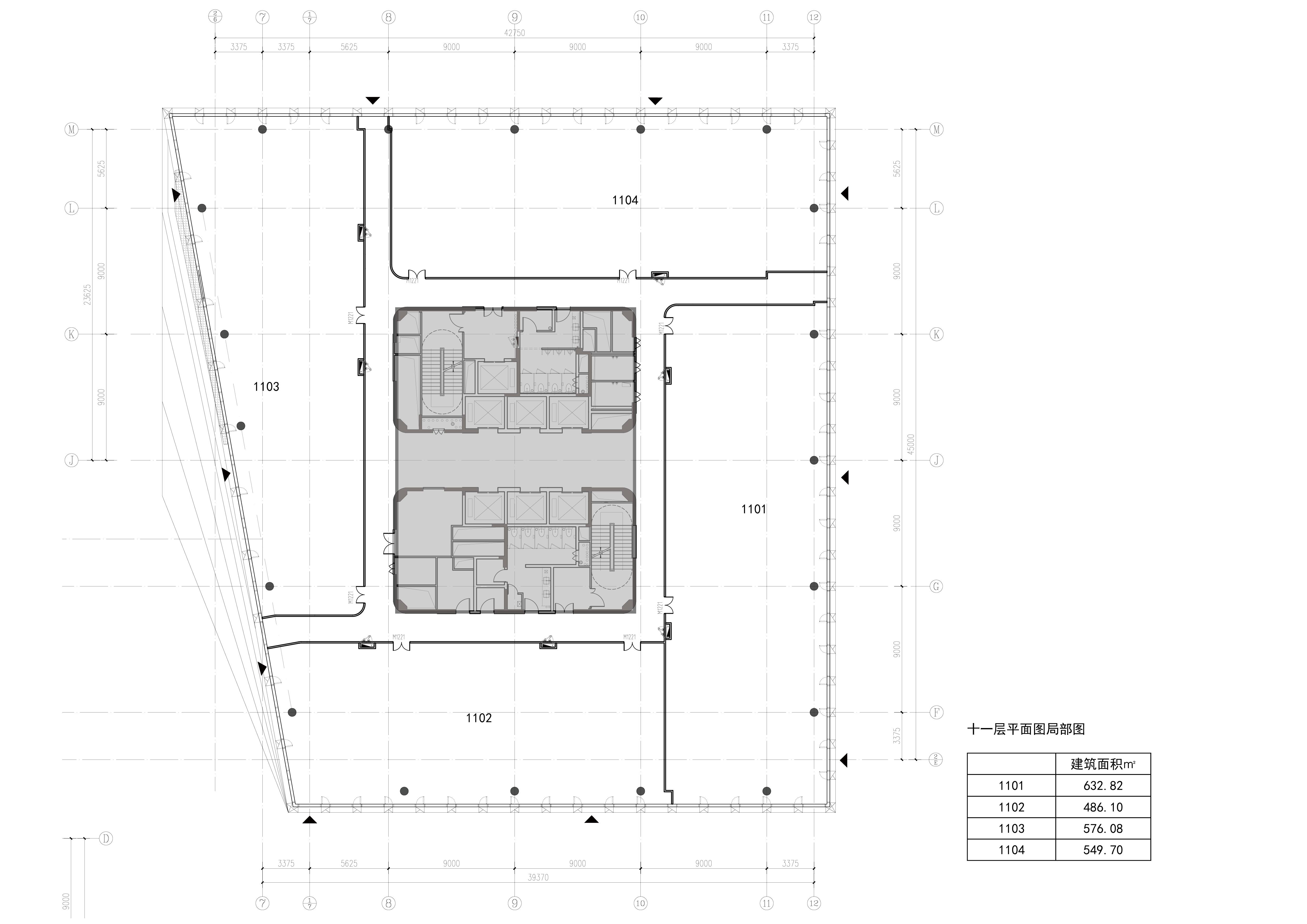
1本次租赁房屋位于杭州市上城区环站东路799号(钱投城东大厦)11101-1104,4间房屋作为一个标的整体出租。本次租赁面积为2244.7㎡(其中1101室为632.82㎡、1102室为486.10㎡、1103室为576.08㎡、1104室为549.70㎡),租赁面积不动产登记清单证载面积。若本次租赁房屋的实际面积与上述明示的招租面积有差异的,以实际面积为准,面积误差不调整租金、履约保证金及交易服务费。

2本次租赁房屋现为空置状态。租赁房屋质量、具体位置等以现场实际为准,租赁房屋的装修部分不以展示现状为准,租赁房屋在移交时,不保证装修、装饰物的完好。

 

 

出租条件与承租方资格条件

出租条件

出租底价

1556699.45元/年

出租面积(㎡)

2244.7

租赁期

7年

起租日

租赁房屋交付之日

免租期

4个月(免租期免租租金为首年4个月租金,装修免租期计入总租赁期限,承租方无需向出租方支付免租期租金,免租期租金在第一期和第二期租金支付时分别予以扣除首年2个月租金)

租金支付要求

一季一付 先付后用

租金调整方式

租金从第二个计租年度开始,每年在上一个计租年度租金基础上递增0.5%(保留两位小数,向上取整),直至租赁期满

履约保证金支付要求

首年2个月的租金;装修保证金100000元

水电气物业费等费用的约定

详见《房屋租赁合同》及附件

出租用途要求

办公

是否允许装修改造

详见《房屋租赁合同》及附件

与出租相关的其他条件

1、本项目经依法展示后举行,标的以现场实物展示为准,意向承租方应当详细阅读本项目所涉及披露内容,有责任自行了解标的的状况,认真进行现场踏勘。意向承租方提交承租申请并且交纳交易保证金后,即视为已详细阅读并完全认可本项目所披露内容以及已完成对标的的现场踏勘,表明已完全了解并自愿接受标的的全部现状及瑕疵,并自愿承担一切交易风险。
2、意向承租方须书面承诺:
(1)同意在被确定为承租方之日起3个工作日内,携带承租申请材料原件到杭交所完成现场确认并签署《成交通知书》、《房屋租赁合同》及附件等相关合同文件;并在《成交通知书》、《房屋租赁合同》及附件等相关合同文件签署之日起5个工作日内向杭交所指定账户一次性支付交易服务费、履约保证金、装修保证金(100000元)、首期租金等交易资金(以到账时间为准)。
(2)同意杭交所在经出租方申请之日起3个工作日内将承租方已交纳的首期租金、装修保证金及履约保证金全部划转至出租方指定账户。
(3)因承租方原因造成《房屋租赁合同》及附件非正常提前终止的,则出租方与承租方约定的装修免租期条款自动失效,装修免租期的租金承租方仍应当按照合同约定支付给出租方。
(4)未经出租方书面同意,不得转租,包括以承包、联营、合作等方式进行转租。
(5)根据出租方提供的不动产登记清单载明,租赁房屋用途为商服用地/办公用房,权利性质为出让/市场化商品房。承租方应充分了解上述情况,由此无法在市场监督管理局办理登记及其他行政审批等相关手续,承租方如有损失自行承担。出租方不承担任何责任。
(6)已知悉:基于租赁房屋系国有资产的特性,承租方同意自始放弃承租人优先购买权。即如在租赁期内租赁房屋遇有出售安排的,无论购买条件和有关情形如何,承租方均放弃主张优先购买权。如房屋出售给第三方,承租方同意将合同的权利义务由第三方继承并配合签署《商品房租赁权益转让协议》。该等处分系承租方充分知晓后的真实意思表示,不可撤销,且承诺不会实施阻挠出售等不当行为。如届时发生承租方违反本条约定及承诺行为的,将视为承租方严重违约,出租方有权单方解除合同。
(7)已知悉:合同履行期间,承租方确因经营需要需新注册公司,并由新注册后的公司作为租赁物业承租人的,承租方需向出租方提出书面申请,经出租方书面审核同意后办理合同主体变更手续。但承租方承诺在合同履行期内,仅申请一次主体变更,且新公司必须为承租方全资或控股公司(如招租公告中对承租人注册资本有要求的,则新公司也应满足该等要求),同时承租方承诺对变更后的承租人承担连带保证责任。
(8)承租方可实施首次转租(转租情况需在5个工作日内向出租方备案),不得整体转租或次承租人二次转租,不得转租给城东大厦其他签约客户。
(9)出租方与承租方的权利义务详见《房屋租赁合同》及附件等交易合同。
3、本次房屋租赁权的交接,在出租方与承租方之间进行,具体详见出租方提供的《房屋租赁合同》(样本)。
4、本项目成交的,承租方须交纳交易服务费,计算标准如下:按首年一个月租金计取,仅征集到一位意向承租方且成交的,可按以上收费标准减半收取。

承租方资格条件

1、依法设立并有效存续的法人、非法人组织或具有民事行为能力的自然人。
2、市城投资集团系统承租人“黑名单”范围内的意向承租方,不得参与报名。

踏勘安排

展示时间

信息披露期间

展示地点

标的所在地

联系人

厉煊

联系电话

18057160860

交易保证金设定

交纳交易保证金

交纳金额

200000 元

交纳时间

信息披露截止日16:00时前交纳(以到账时间为准)

处置方式

1、若非出租方原因,出现以下任一情况时,意向承租方交纳的保证金不予退还,先用于补偿杭交所、经纪会员的各项服务费,剩余部分作为对出租方的经济补偿金,保证金不足以补偿的,相关方有权按照实际损失继续追诉:
(1)意向承租方提交承租申请材料并交纳交易保证金后单方撤回承租申请的;
(2)产生符合条件的意向承租方后,各意向承租方在竞价期间均不报价的;
(3)在被确定为承租方后未按约定签署《房屋租赁合同》及附件的或未按约定支付交易服务费、履约保证金、装修保证金和首期租金的;
(4)意向承租方未履行书面承诺事项的;
(5)存在其他违反交易规则情形的。
2、《房屋租赁合同》及附件签署当日,承租方交纳的交易保证金依次冲抵交易服务费、履约保证金、装修保证金和首期租金;其他意向承租方未被确定为承租方且不涉及保证金扣除情形的,其所交纳的交易保证金在确定承租方之日起3个工作日内无息返还(以划出时间为准)。

 

信息披露期

信息披露期

披露之日起5个工作日

信息披露期满,如未征集到意向承租方

延长信息披露:不变更信息披露内容,按照5个工作日为一个周期延长

直至征集到符合条件的意向承租方

 

竞价方式

竞价方式

在线报价

在线报价

自由报价期

信息披露截止次工作日9时至15时

延时报价周期

5分钟

是否专场

加价幅度

2000元

 

 

房屋出租在线报价交易须知

一、本《在线报价交易须知》(以下称“《须知》”)依据杭州产权交易所(以下称“杭交所”)《房屋出租交易规则》、《在线报价实施办法》,并参照《企业国有产权转让股东行使优先购买权操作细则》制定。

二、意向承租方参加本次在线报价活动,应当知悉并遵守杭交所《房屋出租交易规则》、《在线报价实施办法》和《企业国有产权转让股东行使优先购买权操作细则》的规定,认真阅读本《须知》并接受其全部内容。

三、本次在线报价活动使用杭交所指定系统——杭交所旗下产金所网站(以下称“产金所”,www.chanjs.com),意向承租方应当在信息披露截止前,登录产金所完成用户注册和实名认证,了解并掌握相关操作指引。

四、杭交所网站(www.hzaee.com)和产金所展示的标的名称、图片、文字描述及其他相关信息等系根据出租方提供的信息进行发布,属于一般性介绍,仅为参考性说明,不保证标的的品质和真伪,不构成对标的的状态、品质和瑕疵等的担保。意向承租方应当谨慎判断,并自行承担交易风险。

五、本项目按标的现状进行竞价,意向承租方应当详细阅读本项目信息披露内容,对标的认真进行现场踏勘。意向承租方提交承租申请材料并且交纳交易保证金后,即视为已详细阅读并完全认可本项目信息披露内容以及已完成对标的的现场踏勘,表明已认可并自愿接受标的现状及瑕疵,且自愿承担一切交易风险。

六、报名程序:

(一)在信息披露截止日16时前,进入意向标的详情页面,点击“报名并交纳保证金”按钮,填写相关信息,上传符合承租资格条件的申请材料(复印件需签字盖章),完成报名登记:

1、主体资格证明文件:法人提供营业执照和法定代表人(或负责人)身份证明;非法人组织提供营业执照等登记文件和负责人身份证明;自然人(或个体工商户)提供身份证复印件(或个体工商户营业执照和经营者身份证复印件)。

2、内部决策及批准文件:法人或非法人组织提供章程或协议等和内部决策文件,如需上级批复的,需提交上级批复文件。

3、承诺函。

(二)在信息披露截止日16时前交纳交易保证金,以款到杭交所指定账户(户名:杭州产权交易所有限责任公司;开户行:杭州银行市民中心支行;账号:3301040160002045899)为准,并在信息披露截止日16时前进入产金所的个人中心——参与项目,完成交易保证金的确认付款操作。

如为专场项目,可以根据意向标的数量交纳相应的交易保证金份数。

(三)激活报价资格。

承租申请材料审核通过且按时完成交易保证金确认付款的意向承租方,应当在报价截止前登录产金所激活报价资格,报价资格激活后即成为竞买人。

七、竞买人应当在信息披露公告规定的时间登录产金所进行报价:

(一)在线报价的起始价为转让标的的转让底价。

(二)在线报价采用加价的方式进行,各竞买人每次的有效报价为当前报价加上加价幅度的整数倍(首次报价不低于起始价)。

(三)在线报价活动由自由报价期和限时报价期组成,自由报价期结束即进入限时报价期,限时报价期由限时报价周期组成。

自由报价期内,竞买人的每次有效报价随即成为当前有效报价。进入限时报价期后,在一个限时报价周期内出现新的有效报价的,则进入新的限时报价周期;在一个限时报价周期内未出现新的有效报价的,则当前有效报价方为该次在线报价活动的最高报价方,该最高报价方即为承租方

设定为专场项目并行报价的,竞买人对专场项目中的所有标的同时开始报价;设定为专场项目串行报价的,竞买人对专场项目中的标的按序号先后报价。竞买人的最高报价(含已竞得标的)对应的标的数量不得超过其交纳的交易保证金份数。

(四)优先权人参与在线报价的,在竞价阶段可以行使优先权或直接出价。行使优先权的,优先权人以当前最高报价的相同价格出价。

(五)标的设有保留价的,竞买人的最高报价大于或等于保留价方可成交。

八、在线报价成交的,承租方应当通过产金所取得《成交通知书》。

九、承租方应当按照信息披露的《房屋租赁合同》(样本)与出租方签约。

十、交易服务费发票由本项目经纪会员杭州企业产权交易中心有限公司开具。

十一、出租方有权在在线报价活动开始前撤回转让标的,并不受意向承租方追索。

十二、竞买人应当对其参与在线报价的注册帐户的安全性负责,任何使用竞买人用户名和密码登录进入产金所的用户,在产金所中的一切行为均视为竞买人本人的行为,由竞买人负责。

十三、因竞买人下列行为所产生的一切后果,杭交所不承担任何责任:

(一)未及时关注杭交所发布的在线报价活动相关信息的;

(二)所填写的信息不真实、不准确或不完整而造成注册帐户无法激活或交易保证金无法退还的;

(三)由于竞买人自身的终端设备和网络异常等原因导致无法正常报价的;

(四)在线报价活动的时间以系统时间为准。由于竞买人自身终端设备时间与系统时间不符而导致未按时参与报价的。

(五)其他非杭交所原因造成报价不成功的。

十四、因不可抗力、软硬件故障、非法入侵、恶意攻击等原因而导致系统异常、竞价活动中断的,杭交所不承担任何责任。杭交所将视情况组织继续报价或重新报价,并通知各竞买人。继续报价或重新报价的方式如下:

报价记录可以恢复的,以中断时的最高报价为起始价继续报价;报价记录无法恢复的,以转让底价为起始价重新报价。继续报价或重新报价时将进行不少于3个小时的自由报价,且本项目累计的自由报价期的时间不少于原信息披露公告中约定的时间。

报价号 价格 报价时间